Her kan du konfigurere dit E-KædeSystem individuelt. Alle elementer og ændringer bliver flyttet over til styklisten, som er nederst på siden.
Serie Z26.3 – e-kæde med fyldning langs den indvendige radius
1. Vridningsbevægelse mulig
2. Store tapper - lang levetid
3. God plads til kabler indvendigt
4. Monteringsbeslag med integreret
trækaflastning
5. Version E, fyldes langs den udvendige radius
6. Version Z, fyldes langs den indvendige radius
7. Yderside, der er modstandsdygtig over for snavs
8. Meget let at fylde
9. Fås med {N10}, 2- eller 3-kammer-system (indbygget, helstøbt system med flere kamre til adskilt kabelføring)
Serie Z26 )
Serie Z26.2
10. "Trykknapdesign" holder kædeled sammen
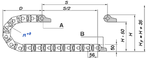
Fås med følgende indvendige bredde: 3x47 mm
Fås med følgende bøjningsradier R: 63 til 250 mm
Ledlængde: 56 mm pr. led = 18 led/m