Her kan du konfigurere dit E-KædeSystem individuelt. Alle elementer og ændringer bliver flyttet over til styklisten, som er nederst på siden.
Serie E4.56AG - Kæde med ribber i hvert led, snapåbning i begge sider
1. Lige kørsel gennem inder-/yderled design
2. Støjsvag drift takket være integreret bremse på de radiale stopklodser
3. Meget høj stivhed og bæreevne når der påvirkes af forskydningskræfter, takket være fer og not konstruktion
4. 15% yderligere trækstyrke, større frithængende længde gennem forbedret stopklemmesystem og lodrette radiale stop
5.Ribber kan fås til hurtigere montering/afmontering 450.X. Q
6. Hyldeprogram med et bredt udvalg - ny indvendig separator til hurtigere kabelindføring er mulig - T563(A)
7. NC "intet kammer" udgave er muligt ved blot at dreje det udvendige led uden eftermontering
8. e-kædeled kan afmonteres på begge sider
9. Drejeligt og aftageligt e-rørslåg
10. Kabelvenlige, brede polymer-ribber
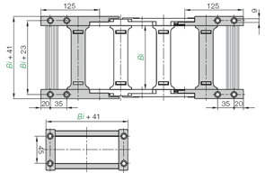
Fås med følgende indvendige bredder Bi: 50 til 600 mm
Fås med følgende bøjningsradier R: 135 til 500 mm
Ledlængde: 91 mm pr. led = 11 led/m