Her kan du konfigurere dit E-KædeSystem individuelt. Alle elementer og ændringer bliver flyttet over til styklisten, som er nederst på siden.
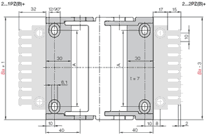
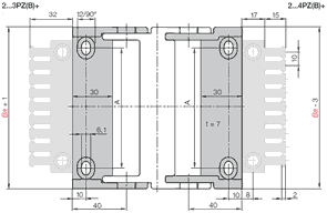
Serie 2400AG, version 02 – kæde, snapåbning langs den indvendige radius
Autoglide-systemet er nu udvidet og optimeret for igus® E2/000. Større glideflader på autoglide ribber sikrer endnu længere levetid for systemet. En clip-on glidevinge sikrer e-chain® justering over de første få meters bevægelse. De excentriske føringer er fastgjort på gulvet for hver 2 meter.
Kædelængde = S + K3
2 glidevinger er påkrævet pr e-chain®
Bemærk venligst: I tillæg til kædens ydre bredde skal der beregnes 14 mm til bredden af de to glideelementer!